5.51 区域代码 Region Code (REGN CODE)
5.51 Region Code (REGN CODE)
Definition/Description: The “Localizer Width” field specifies the localizer course width of the ILS facility defined in the record.
Source/Content: Localizer course widths from official government sources are entered into the field in degrees, tenths of a degree and hundredths of a degree with the decimal point suppressed.
Used On: ILS records
Length: 4 characters
Character Type: Numeric
Examples: 0500, 0400, 0350
5.51 区域代码
定义或描述:说明记录中定义的ILS设施航向台航径的宽度。
数据源或供选编码:来自官方的资料的航向台航径的宽度,以度、十分位度和百分位度的形式填入本项,小数点省略。
应用范围:ILS记录
字节数:4位
字符类型:数字
举例:0500、0400、0350
5.52 下滑道角度/最小测量高度 Glide Slope Angle/Minimum Elevation Angle
5.52 Glide Slope Angle(GS ANGLE) Minimum Elevation Angle(MIN ELEV ANGLE)
Definition/Description: The “Glide Slope Angle” field defines the glide slope angle of an ILS facility/GLS approach. The “Minimum Elevation Angle” field defines the lowest elevation angle authorized for the MLS procedure.
Source/Content: Glide Slope and Elevation angles from official government sources are entered into the fields in degrees, tenths of a degree and hundredths of a degree with the decimal point suppressed.
Used On: ILS, GLS and MLS records
Length: 3 characters
Character Type: Numeric
Example: 275, 300
5.52 下滑道角度/最小测量高度
定义或描述:定义ILS设施/GLS进近的下滑角。
数据源或供选编码:来自官方的资料的下滑角,以度、十分位度和百分位度的形式填入本项,小数点省略。
应用范围:ILS GLS MLS记录
字节数:3位
字符类型:数字
举例:275、300
5.53 过渡高度/过渡高度层 Transition Altitude/Level
5.53 Transition Altitude/Level
Definition/Description: The “Transition Altitude” field defines the altitude in the vicinity of an airport or heliport at or below which the vertical position of an aircraft is controlled by reference to altitudes (MSL). The “Transition Level” field defines the lowest flight level available for use above the transition altitude. Aircraft descending through the transition layer will use altimeters set to local station pressure, while departing aircraft climbing through the layer will be using standard altimeter setting (QNE) of 29.92 inches of mercury, 1013.2 millibars or 1013.2 hectopascals.
Source/Content: Transition Altitudes/Levels are derived from official government sources. For STAR and Approach records, the field defines the level, expressed in feet, at which the altimeter barometric setting is changed from standard to local values for the airport or heliport identified in the record. For SID records, the field will contain the Transition Altitude expressed in feet. The first leg of each Airport and Heliport SID/ STAR/Approach procedure shall contain the appropriate transition altitude with a resolution of one foot. If the transition altitude is unknown “by ATC,” the field will be blank in procedure records. For Airport and Heliport records, the Transition Altitude and Transition Level will be entered into the appropriate fields, in feet with a resolution of one foot. If the Transition Altitude or Level is unknown, “by ATC” or has different values for varying procedures at the airport or heliport, the field will be blank.
Used On: Airport and Heliport SID/STAR/Approach, Airport and Heliport Records
Length: 5 characters
Character Type: Numeric
Examples: 05000, 23000, 18000
5.53 过渡高度/过渡高度层
定义或描述:过渡高度字段定义机场或直升机场附近的高度,在该高度以下,航空器的垂直位置以MSL为基准。过渡高度层字段定义过渡高度之上的可用最低飞行高度层。航空器下降穿过过渡层时,高度表拨正使用本机场气压,离场航空器爬升穿过过渡层使用标准高度表拨正值29.92英寸汞柱,或1013.2毫巴,或1013.2百帕。
数据源或供选编码:过渡高度/高度层来源于官方资料。在STAR和APP记录中,该字段以英尺定义,在过渡高度层时,高度表拨正值从标准值调到在记录中定义的机场的本地气压。在SID记录中,该字段包括过渡高度。SID/STAR/APP程序第1段包括合适的过渡高度,分辨率为1英尺。如果无过渡高度或标ATC决定时,记录中的该字段为空。在机场记录中,过渡高度/过渡高度层填入合适的值。如果无过渡高度/高度层,ATC决定,或不同的程序有不同的值时,该项为空。
应用范围:SID/STAR/APP、机场记录
字节数:5位
字符类型:数字
举例:05000、23000、18000
5.54 最长跑道 Longest Runway
5.54 Longest Runway (LONGEST RWY)
Definition/Description: The “Longest Runway” field permits airport to be classified on the basis of the longest operational hard-surface runway.
Source/Content: The longest runway will be derived from official government sources and entered in the field in hundreds of feet. This value will represent the longest hard-surfaced operational runway available without restriction at the airport. The value reflects overall pavement length declared suitable and available for the ground operations of aircraft. Where no hard-surfaced runway is available or those available do not meet criteria, the value will represent the longest operational runway at the airport.
Used On: Airport Records
Length: 3 characters
Character Type: Numeric
Examples: 040, 055, 098, 111
5.54 最长跑道
定义或描述:最长跑道字段允许根据最长的使用中的刚型道面跑道,将机场进行分类。
数据源或供选编码:最长跑道值来自官方资料,以百英尺为单位填入。该值表示机场无限制使用的最长使用中的刚型道面跑道,反映出供航空器地面运行,适用并可用的全部铺筑面的公布字节数。在无刚型道面跑道提供使用的地方,或者达不到标准的地方,表示该机场的最长使用跑道。
应用范围:机场记录
字节数:3位
字符类型:数字
举例:040、055、098、111
5.55 机场标高 Airport/Heliport Elevation (ELEV)
5.5 Airport/Heliport Elevation (ELEV)
Definition/Description: The elevation of the Airport/Heliport specified in the record is defined in the “Airport Elevation” and “Heliport Elevation” field.
Source/Content: Airport/Heliport elevations are to be derived from official government sources and entered into the field in feet to a resolution of one foot. For elevations above MSL, the field contains the numeric characters of the elevation only. For below MSL elevations the first character of the field is a minus (-) sign. In most cases, airport elevation is defined as the highest elevation of any landing surface on the airport.
Used On: Airport and Heliport records
Length: 5 characters
Character Type: Alpha/numeric
Examples: 02171, -0142, 05230
5.5 机场标高
定义或描述:记录中说明的机场标高,在机场标高字段中定义。
数据源或供选编码:机场标高值来自官方资料,以英尺为单位填入,分辨率为1英尺。高于MSL的标高,本域只填标高数字。低于MSL的标高,本项第1位填负号“-”。在大多数情况下,机场标高定义为机场着陆面上的最高标高。
应用范围:机场记录
字节数:5位
字符类型:字母/数字
举例:02171、-0142、05230
5.56 登机门号 Gate Identifier (GATE IDENT)
5.56 Gate Identifier (GATE IDENT)
Definition/Description: The airport gate defined in the record is identified in the “Gate Identifier” field.
Source/Content: Coded gate identity information is derived from official government sources and navigation system users.
Used On: Gate records
Length: 5 characters max
Character Type Alpha/numeric
Examples: C134B, 23, 30A, B12A
5.56 登机门号
定义或描述:表示记录中定义的机场登机门。
数据源或供选编码:登机门编号资料来自官方资料和导航系统用户。
应用范围:登机门记录
字节数:最多5位
字符类型:字母/数字
举例:C13B、23、23A、B12A
5.57 跑道长度 Runway Length
5.57 Runway Length (RUNWAY LENGTH)
Definition/Description: The “Runway Length” field defines the total length of the runway surface declared suitable and available for ground operations of aircraft for the runway identified in the records’ Runway Identifier field.
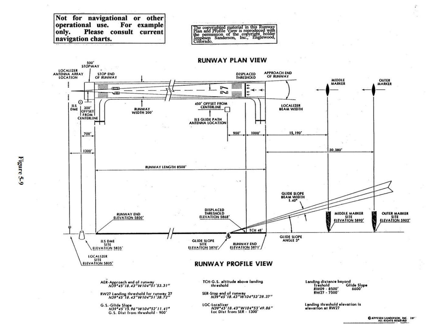
Source/Content: Runway lengths are derived from official government sources and are entered in feet with a resolution of one foot. The value represents the overall length of the runway, with no regard for displaced thresholds. It does not include stopways, overruns or clearways. Available landing lengths and take-off runs are not necessarily identical to this runway length. Analysis of the content of Section 5.69, Displaced Threshold and 5.79, Stopway is required to determine these operational lengths. As the latitude/longitude information in the runway record reflects the Landing Threshold Point of the runway identified in the record, which may or may not be displaced, there is no direct correlation between the Runway Length and a value calculated based on these latitude/longitude values. For additional information on runway length analysis and operational length calculations, see Figure 5-9.
Used On: Runway Records
Length: 5 characters
Character Type: Numeric
Examples: 05000, 07000, 11480
5.57 跑道长度
定义或描述:跑道长度字段定义记录的跑道识别字段中表示的跑道,供航空器地面运行之用的公布可用跑道道面的全长。
数据源或供选编码:跑道长度资料来自官方资料,以1英尺的分辨率填入本项。该值表示跑道的全长,不考虑入口内移。不包括停止道、安全道或净空道。可用着陆长度和起飞滑跑长度不必与跑道长度相同。要求用5.69内移入口内容的分析和5.79停止道分析来确定这些使用长度。由于跑道记录中的经纬度资料反映记录中跑道着陆入口点的,该点可能内移也可能不内移,与跑道长度之间无直接关系,该值是根据这些经纬度值计算出的一个值。跑道长度补充资料的分析和使用长度的计算见图5-9。
应用范围:跑道记录
字节数:5位
字符类型:数字
举例:05000、07000、11480
5.58 跑道磁方向 Runway Magnetic Bearing
5.58 Runway Magnetic Bearing (RWY BRG)
Definition/Description: The magnetic bearing of the runway identified in the “runway identifier” field of the record is specified in the “Runway Magnetic Bearing” field.
Source/Content: Runway magnetic bearings derived from official government sources are entered into the field in degrees and tenths of a degree, with the decimal point suppressed. For runway bearings charted with true bearings, the last character of this field will contain a “T” in place of tenths of a degree.
Used On: Runway records
Length: 4 characters
Character Type: Alpha/numeric
Examples: 1800, 2302, 0605, 347T
5.58 跑道磁方向
定义或描述:记录的跑道号字段中表示的跑道磁方位,在本字段中说明。
数据源或供选编码:跑道磁方位值来自官方资料,以度和十分位度填入,省略小数点。图上用真方位表示的跑道方位,本项的最后1位以T代替十分位度。
应用范围:跑道记录
字节数:4位
字符类型:字母/数字
举例:1800、2302、0605、347T
5.59 跑道描述 Runway Description (RUNWAY DESCRIPTION)
5.59 Runway Description (RUNWAY DESCRIPTION)
Definition/Description: If required, additional information concerning a runway can be included in a record in the “Runway Description” field.
Source/Content: Appropriate contents for the field will be determined when the record is assembled.
Used On: Runway records
Length: 22 characters max
Character Type: Alpha/numeric
Examples: GROOVED, SINGLE ENG. ONLY
5.59 跑道描述
定义或描述:如果需要有关跑道的补充资料,包括在跑道描述字段的一个记录中。
数据源或供选编码:在记录集成时确定该项的有关内容。
应用范围:跑道记录
字节数:最多22位
字符类型:字母/数字
举例:GROOVED、SINGLE ENG ONLY
5.60 名称 Name
5.60 Name
Definition/Description: The “Name” field defines the name commonly applied to the navigation entity defined in the record.
Source/Content: Appropriate contents for the field will be determined from official government or customer sources.
Used On: Gate and Holding Pattern records
Length: 25 characters max
Character Type: Alpha/numeric
Examples: HOLDING JIMEE MIAMI
5.60 名称
定义或描述:名称字段定义通应用范围记录中填入的 航行实体的名称。
数据源或供选编码:内容来源于官方或用户。
应用范围:登机门和等待程序记录
字节数:最多25位
字符类型:字母/数字
举例:HOLDING JIMEE MIAMI